Infraestructuras educativas
Adjudicadas las obras de ampliación del CEIP Fernando II de Benavente con un nuevo comedor y cocina
La Dirección Provincial de Educación de Zamora formaliza el contrato por 93.101,74 euros con un plazo de ejecución de siete meses

Así será la actuación en el CEIP Fernando II de Benavente. / Info J. A. G.
La Dirección Provincial de Educación de Zamora ha adjudicado las obras de ampliación del Centro de Educación Infantil y Primaria (CEIP) Fernando II de Benavente, que contemplan la construcción de un comedor y una cocina en el edificio escolar situado en la calle Santa Clara. El contrato responde a la necesidad de completar el programa de servicios del colegio, que hasta ahora carecía de estas instalaciones.
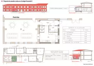
El proyecto define una nueva edificación de planta baja adosada al cuerpo principal del centro, con acceso desde el patio escolar. La ampliación incluye una cocina de 15,80 m², un vestuario para el personal, un distribuidor, un cuarto de limpieza y una despensa, sumando una superficie útil de 29,60 m². El aula existente sobre la que se adosa la nueva construcción será adaptada como comedor, comunicándose interiormente con la cocina.
La superficie construida del colegio pasará de 1.401,00 m² a 1.437,30 m², con una afección directa de 36,30 m² por las obras. El edificio principal mantiene su uso docente, sin previsión de otros usos distintos, y cumple con las exigencias de habitabilidad, accesibilidad y seguridad establecidas en el Código Técnico de la Edificación (CTE). Entre las prestaciones garantizadas figuran la protección frente a incendios, la salubridad, el aislamiento acústico y térmico, así como el ahorro energético mediante sistemas de iluminación eficientes y controlados.

Los planos de la actuación en el Fernando II. / Info J. A. G.
El contrato ha sido adjudicado a la empresa Construcciones P. Sánchez Rodríguez S.L., por un importe total de 93.101,74 euros (IVA incluido), tras presentar una oferta económica de 76.943,59 euros sin impuestos. La adjudicación se fundamenta en la mejor relación calidad-precio, con criterios de valoración que incluyen mejoras técnicas, mantenimiento del edificio y plan de control de calidad.
El plazo de ejecución de las obras es de siete meses, según el programa de desarrollo previsto. Las fases contemplan actuaciones previas, movimiento de tierras, cimentaciones, estructura, albañilería, cubiertas, aislamientos, pavimentos, carpintería, instalaciones de fontanería, electricidad, climatización, ventilación y protección contra incendios. La evacuación en caso de emergencia seguirá garantizada a través de las salidas existentes hacia el patio y la vía pública.

Cronograma de los trabajos en el colegi. / JCyL
La documentación técnica declara la obra como completa asegurando que el proyecto define, valora y permite ejecutar las actuaciones necesarias. La intervención se integra en el Plan General de Ordenación Urbana de Benavente y cumple con las normativas estatales, autonómicas y locales aplicables, incluyendo el Reglamento Electrotécnico de Baja Tensión, el Reglamento de Instalaciones Térmicas en los Edificios y la Ley del Ruido de Castilla y León.
- El Ayuntamiento de Benavente otorga una concesión directa a American Tower para instalar antenas en el depósito de San Isidro
- Ratificada la paralización en Benavente de una obra ilegal en la avenida El Ferial
- Reclamación insólita en Benavente: 2.300 euros de agua tras ocho años con el suministro cortado
- La expropiación municipal de un almacén de la Vía del Canal de Benavente costará el doble de lo previsto
- Llamamiento a los pueblos de Zamora a una concentración para pedir 'cauces limpios
- El Gobierno aprueba la construcción de un nuevo cuartel de la Guardia Civil en Benavente
- Esta localidad de Zamora, la quinta mejor de España para vivir saludablemente
- Las familias del memorial destruido en Castrogonzalo reclamarán por daños patrimoniales y morales